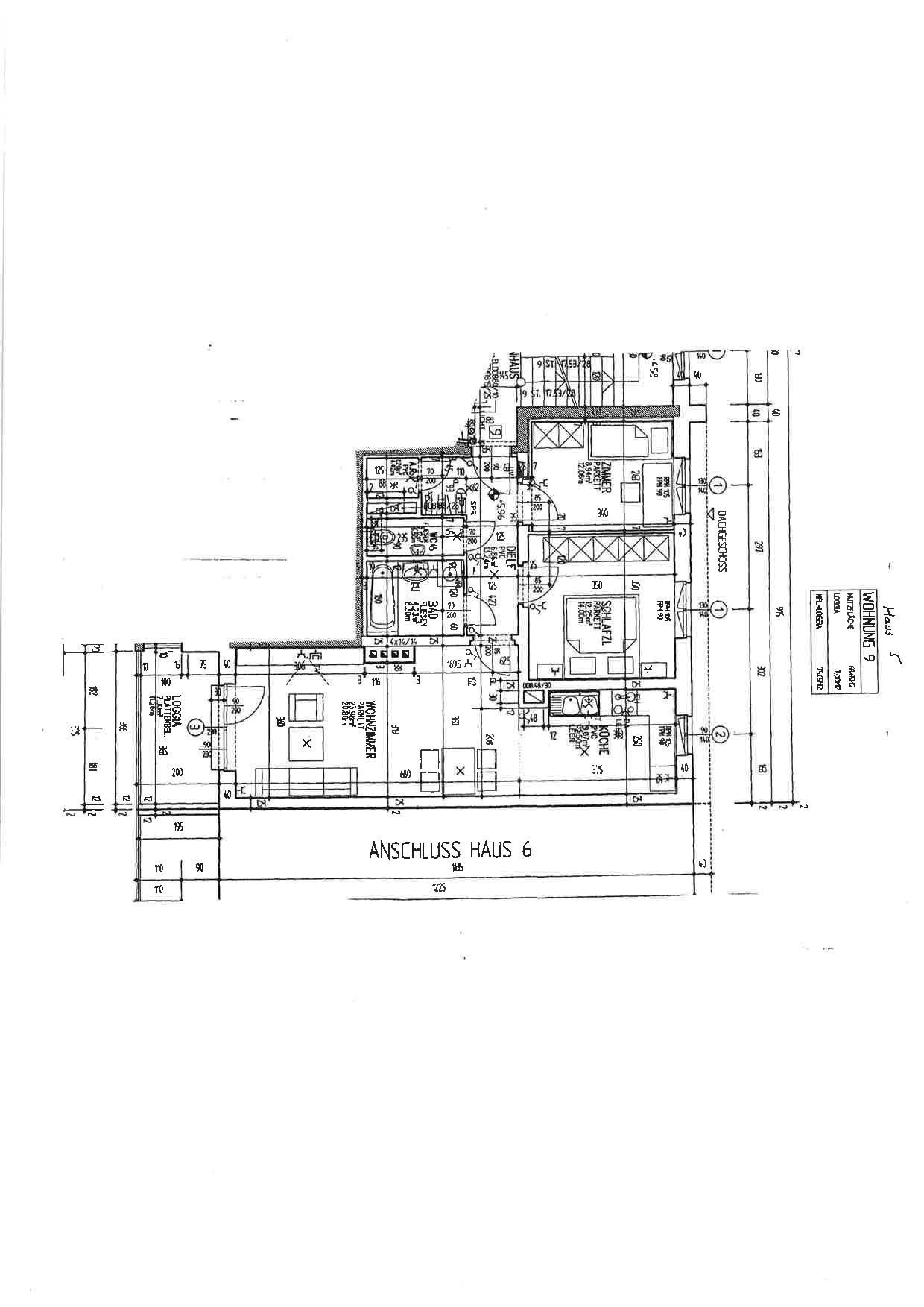
Mietwohnung
Haagerfeldstraße 3
4060 Leonding
Qualität hat Bestand. Und Qualität ist bei uns gleichbedeutend mit Wohnqualität. Egal ob innerstädtisch, zentrumsnah oder -fern, ob zur Miete im Eigentum, und unabhängig von der Wohnform. Über 6400 Wohnungen in über 700 Häusern, verteilt in nahezu allen Bezirken Oberösterreichs, haben wir bereits geschaffen. Zu vergleichbar günstigen Preisen. Familien- und kinderfreundlich angelegt – und auf dauerhaften Werterhalt ausgelegt.
Damit entsprechen wir nicht nur bei Komfort und Ausstattung, sondern auch punkto Leistbarkeit speziell jetzt mehr denn je den Entwicklungen der Zeit.


